mover mover2
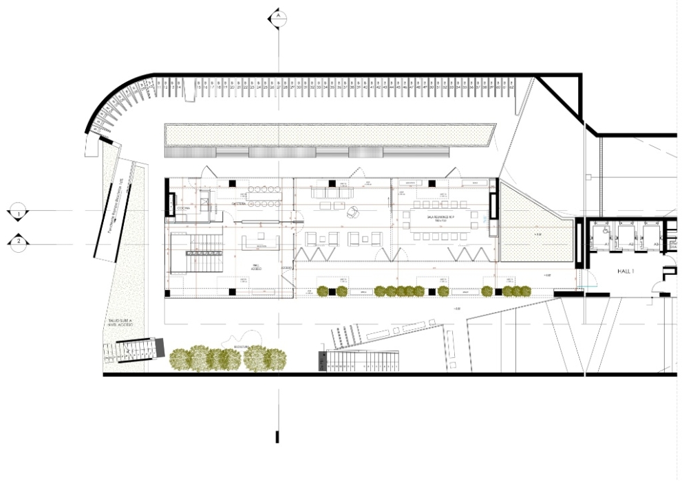
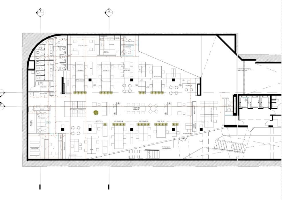
Oficina Constructora SIGRO

Tipo: Oficinas, Interiorismo
Año: 2022
Ubicacion: Narciso Goycolea 4040, Vitacura, Santiago de Chile
Area: 1000 m2
Arquitectos: L A N D arquitectos and Contexto 
Estructura: Luis Soler P. & Asociados