Tipo: Casa de playa
Año: 2010
Ubicación: Punta de Lobos, Pichilemu
Área: 272 m2
Estructura: Cargaz Ingeniería
Arquitectos colaboradores: Javier Lorenzo y Francisco Duarte
Fotógrafo: Sergio Pirrone
Con elementos típicos de la arquitectura colonial de la zona, reinterpretamos las técnicas y materiales de la arquitectura tradicional local, de manera que respondiera a los retos contemporáneos. Tomamos dos elementos locales principales: los zócalos y la madera local que abunda en la región.
Zócalo: estructura local tradicional hecha de lajas, utilizada como base para soportar otras estructuras, que ayudan a disminuir la humedad en el espacio interior. La losa de piedra ha sido utilizada por los pescadores locales para construir estructuras de improvisación a lo largo de la costa y se ha utilizado en los edificios tradicionales que datan de 1800 en Pichilemu.
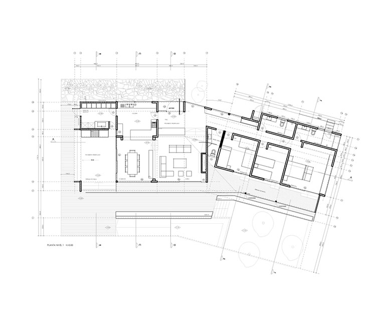
En la Casa Zócalo, este elemento construye una plataforma, la cual conforma un espacio exterior para la casa con terrazas protegidas del viento sur y áreas verdes controladas, limitando el área de riego, debido a la escasez de agua en la zona.
Con una vista predominante hacia Punta de Lobos, el volumen se emplaza de manera de que la mayor cantidad de recintos miren hacia el mar, pero con un quiebre en éste se busca proteger de los vientos del sur la fachada nor-poniente y sin perder la vista.
El zócalo y muros de la casa se ventilan, disminuyendo la humedad interna de pisos y muros. Las piedras lajas fueron extraídas de una cantera habilitada en el mismo sitio. Con el fin de generar continuidad con el zócalo y trabajar la quinta fachada, el techo también fue revestido con piedra laja.
La casa se forma en función de las principales vistas hacia el mar y las direcciones predominantes del viento. Como resultado, se crean exteriores protegidos contra el viento y los espacios principales son más de ver el punto de surf de Punta de Lobos. Los materiales y los detalles de la construcción, se enfocan en la resistencia a las condiciones de la playa.