mover mover2
Casa Finger Joint

Tipo: Casa de campo
Ubicación: Nogales, región de Valparaíso
Año: 2009
Área: 277 m2
Estructura: Manuel Ruiz
Fotógrafo: Cristóbal Palma
Premio: 100 Top Projects de Archdaily, 2016

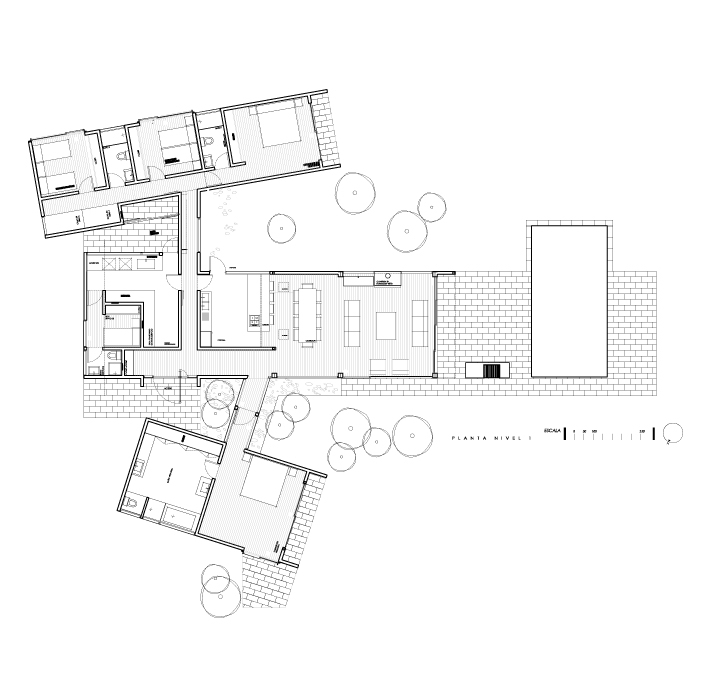
Nos encontramos con un sitio agrícola degradado, el cual toma valor mayormente por sus vistas lejanas y no inmediatas. Por lo que quisimos crear lugares dentro del lugar, a través de la arquitectura y su interacción con el terreno propiamente tal.

Para esto, aplicamos una estrategia denominada finger joint. Concepto joint: punto en el cual las partes de una estructura artificial se unen. En este caso, sería: arquitectura (artificial) + terreno modelado. Los volúmenes se entrelazan (finger joint) con el terreno, modelando un nuevo paisaje. La separación de los volúmenes crea espacios “vacíos”, que sirven de distintas maneras para la casa.

El espacio interior, contenido por la nave central, se proyecta hacia los patios que lo rodean, extendiéndose hacia la naturaleza. Los volúmenes están orientados hacia las principales vistas: los cerros y viñedos.

Estrategias sustentables usadas:

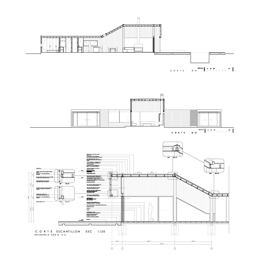
Patios verdes (sombras), ventilación cruzada y abertura a los vientos predominantes para enfriar la casa, muros ventilados de madera color blanco, doble piel de celosía de madera hacia el poniente y techo pintado blanco.