mover mover2
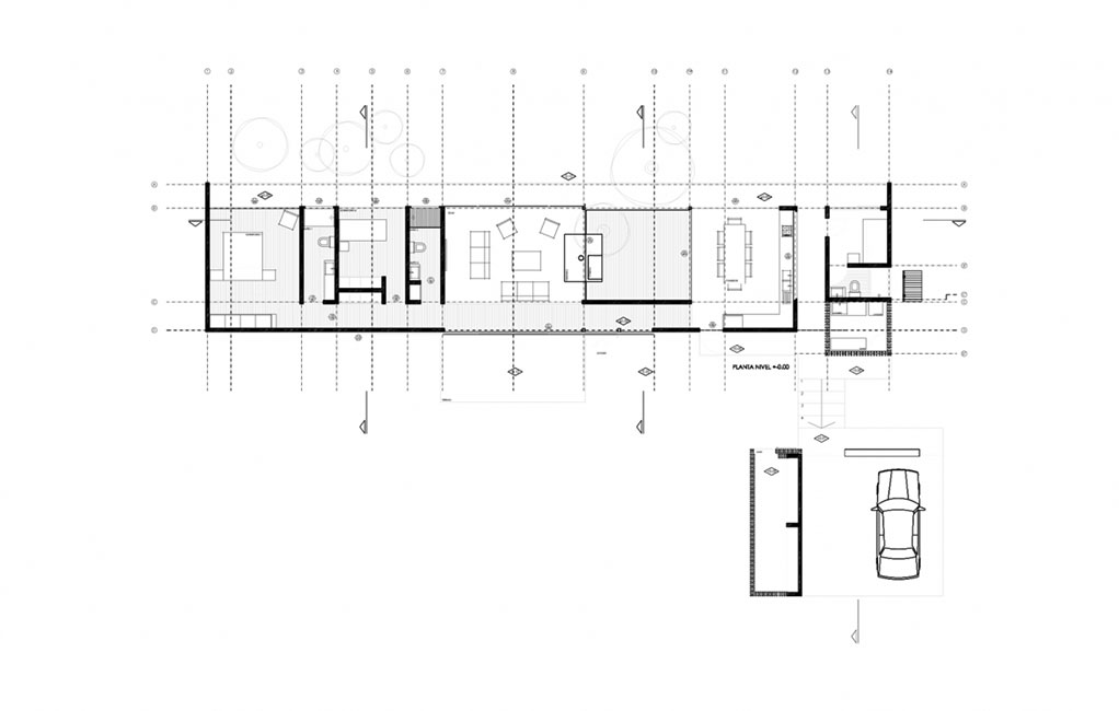
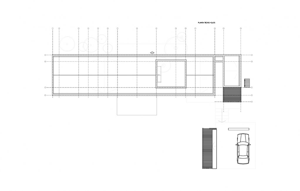
Casa Traspasa Vistas

Tipo: Casa de playa
Año: 2006
Ubicación: Matanzas, región de O'Higgins
Área: 170 m2
Arquitectos: Cristóbal Valenzuela, Wedeles & Manieu Arq.
Fotógrafo: Camilo Melús