mover mover2
Colegio Santa Rosa

Tipo: Educacional
Año: 2013
Ubicación: Constitución, región del Maule
Área: 1.400 m2
Arquitecto colaborador: Javier Lorenzo
Premio: 100 Top Projects de Archdaily, 2016

El 27 de febrero de 2010, Chile sufrió un terremoto de magnitud 8.8 en la escala de Richter, con un posterior tsunami. La ciudad costera de Constitución fue una de las más devastada del país, afectando aproximadamente un 70% del centro histórico, donde se encuentra el Colegio Santa Rosa que perdió al menos el 50% de su infraestructura.

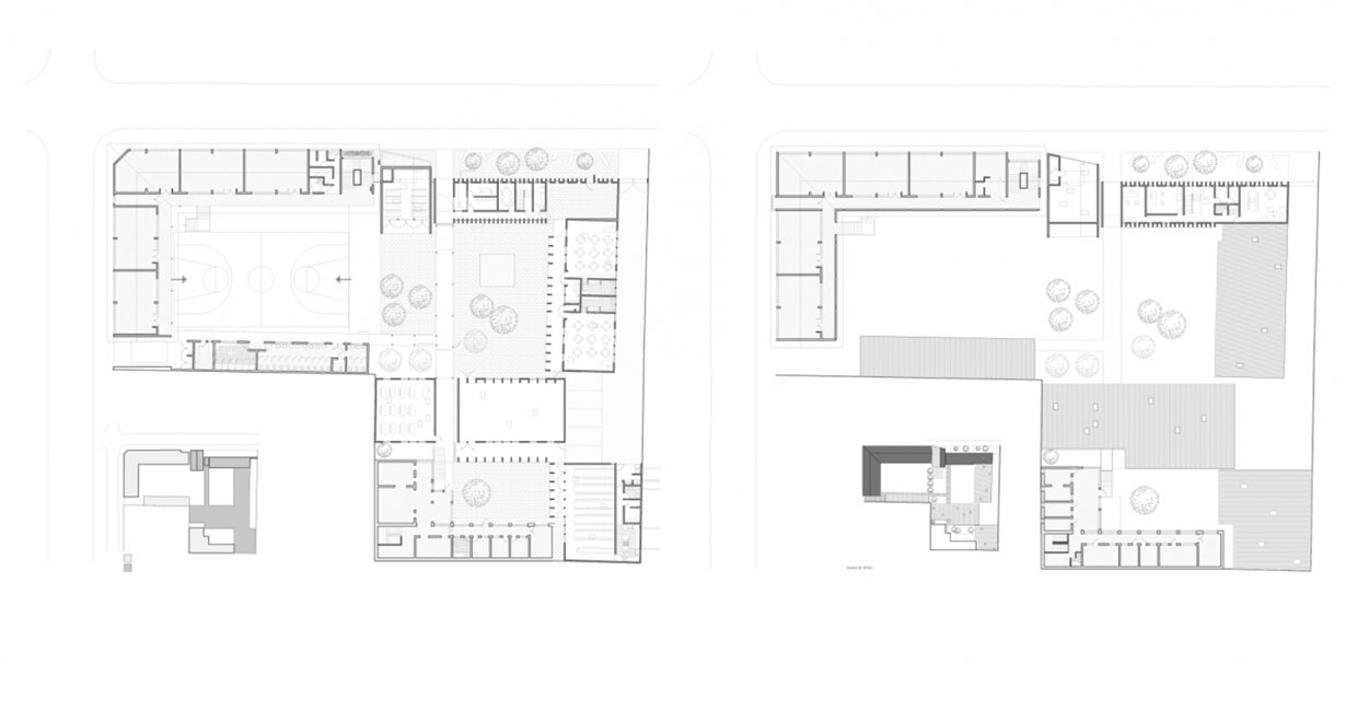
La reconstrucción del Colegio Santa Rosa buscó recuperar la infraestructura perdida y reconstruir la fachada hacia el centro histórico, aportando también a la ciudad. Para lograr esto, el colegio retranquea la fachada continua proyectada 4 metros hacia el interior del sitio, construyendo una plaza pública que, junto con la capilla -que también enfrenta la calle-, constituyen un espacio público y memorial a las víctimas del terremoto. Hacia el interior, el proyecto se desarrolló a través de una serie de patios con distintos usos.

La capilla se proyectó con forma de roca, recordando las rocas de la zona, con un fin escultórico ligado a su condición de memorial.

Constitución se caracteriza por ser un productor de madera de pino. Tomando este elemento como identidad del lugar se decidió recubrir los volúmenes con madera de pino de la zona, sin cepillar, y pintadas con imprimantes blanco para que envejezca de un modo gradual hacia el color gris que toma el pino envejecido naturalmente.