mover mover2
Casa Atrapa Vistas

Tipo: Casa de playa
Año: 2013
Ubicación: Zapallar, región de Valparaíso
Área: 593 m2
Arquitectos colaboradores: Javier Lorenzo, Gonzalo Arteche, Francisco Duarte y Andrés Altamirano
Fotógrafo: Sergio Pirrone

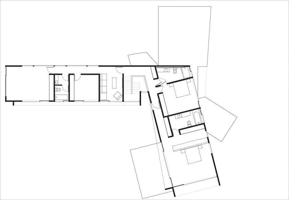
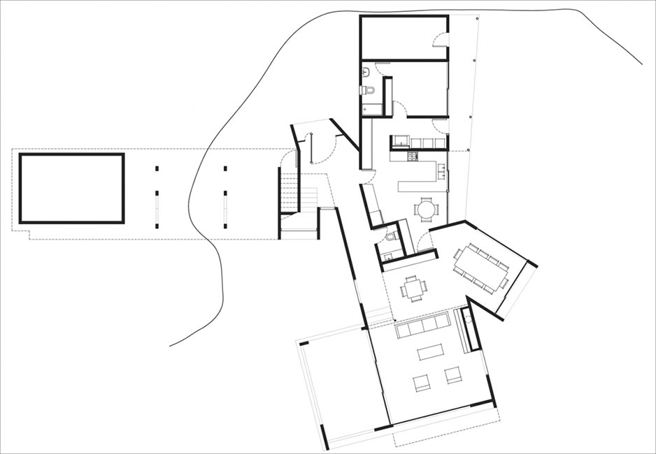
Casa Atrapa Vistas nació de la idea de capturar las diferentes vistas existentes desde el terreno, en una serie de volúmenes en los cuales se distribuye el proyecto. Para logar esto, se realizó un estudio de las vistas, además de consideraciones sobre las ventajas y desventajas del clima costero y la exposición en primera línea al mar. Los volúmenes enmarcan el borde costero, una quebrada y la rompiente, evitando la exposición directa a construcciones vecinas.

Los volúmenes se apilaron unos sobre otros, recordando la manera en que se apilan las rocas de la rambla costera. El color gris también simila las rocas.

En esta vivienda experimentamos con un sistema de paneles prefabricados de hormigón de manera de reducir los tiempos de construcción en un lugar donde la mano de obra es escaza.