mover mover2
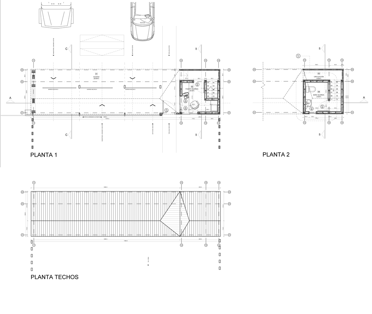
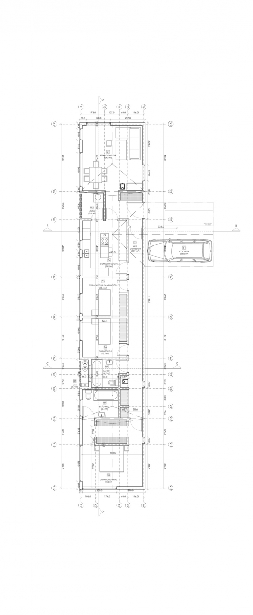
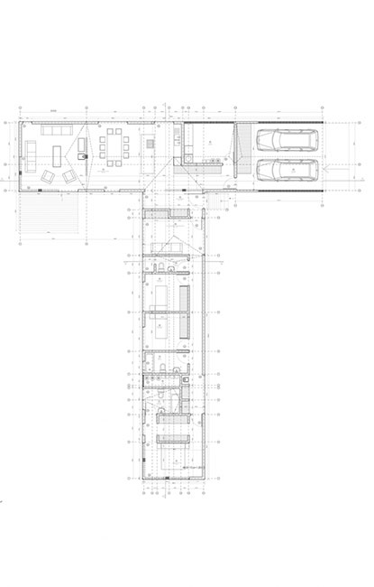
Lechería Santa Helena

Tipo: Instalaciones de lechería
Año: 2015
Ubicación: Reumen, Valdivia
Arquitecto colaborador: Javier Lorenzo                                                                                                                                       Arquitectos: L A N D + Santiago Colvin