Tipo: Plan maestro, infraestructura bike park
Año: 2015
Ubicación: Leyda, región de Valparaíso
Área: 250 ha.
Arquitectos colaboradores: Javier Lorenzo y Félix Salinas
Diseño y construcción bike park: Park Land Solutions
Diseño y construcción pistas motocross: MX Track Builders (USA), Park Land Solutions
Fotógrafos: Pablo Casals, Juan Luis de Heeckeren y Francisco Fuenzalida
Premios: Seleccion XVI Bienal Internacional de Arquitectura de Buenos Aires 2017
Master Plan
El plan maestro Bike Park Las Palmas, tiene como objetivo principal identificar las condiciones y vocación del territorio para la disposición de circuitos deportivos en torno a la optimización de la pendiente en el sentido lúdico-deportivo de un bike park y proteccción del paisaje natural.
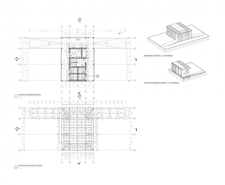
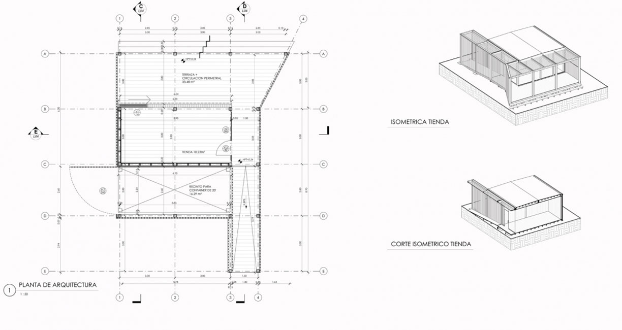
El parque deportivo cuenta con un bike park de variadas pistas y niveles en más de 200 ha, ubicado en Leyda, a 90km de Santiago. En el área central del parque, área cubierta por bosque nativo mediterráneo, se proyectó la infraestructura principal de parque, construyendo una aldea dentro del paisaje. La aldea es un lugar de encuentro, es el inicio y el término del recorrido, y el programa se distribuye en dos volúmenes principalmente: la tienda y los baños, más elementos de arquitectura de paisaje tales como: los quinchos, mesas de picnic, estacionamientos y área de descanso donde se ubican bancas y estacionamientos de bicicletas. La circulación de la Aldea se propone de manera orgánica y ramificada a través de senderos cuidadosamente construidos con técnicas de bajo impacto medioambiental, distribuyendo los flujos de personas funcionalmente y de forma que estos senderos de servicio de la Aldea y parque se camuflen con los senderos deportivos propiamente tal.
Arquitectura - Estructura y Piel
La tienda y los baños se proyectan como volúmenes suspendidos en una grilla modular de 3x3m, usando medida estándar de la madera, repitiéndose en función a las necesidades del proyecto. Armado con pilares de 6x6, envigados de piso de 2x8 y envigados de techo de 2x6. Todo esto a una distancia del suelo permitiendo la ventilación del piso. El volumen está envuelto en una piel de varas de eucaliptus extraídas del mismo parque, que usualmente se usan en las ramadas locales durante las fiestas patrias. Este material se encuentra en el mismo terreno con facilidad, lo que hace la construcción más eficiente en costos y tiempos. Adicionalmente genera una luz y sombra orgánica y cambiante que evidencia el pasar del sol generando una interioridad dispersa y confusa dentro de un espacio ortogonal y modular. Acentuando el dinamismo que caracteriza el uso del bike park, como el constante movimiento de personas, fauna local y el paso del día y jornada deportiva.